
To explain the Truly Epic FFL process, lets start from the beginning. From beginning to end this process usually takes no longer than 30 minutes.
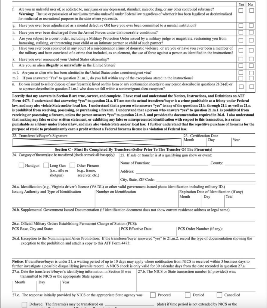
The process is simple. Bring A valid state drivers license or state authorized personal identification with you when having your firearm transferred or picked up. You will fill out a form 4473 which is shown below.



Certain parts are filled out by you the buyer nd other parts are filled out by the the transferring FFL.
- Section A is filled in by the FFL.
- Section B is filled in by you the customer /buyer of the firearm in which it will transfer to. Be careful and make sure you read every question and understand it, answer truthfully and sign your name and date on question 22 and 23.
- Section C is filled in by the FFL
- After this application is filled out, there will be a search performed with the Pa. State Police (ePics).
- When that comes back, you are either Approved or Denied.
- Section D is signed and dated once you take possession of the firearm.
- Section E is filled out by the FFL.
- In the case of being approved you leave with your gun and go on your merry way.
If denied, there is a challenge form you can fill out. According to the Pennsylvania State Police:
The PICS background check program issues approvals or denials. For a denied or undetermined result, the dealer will inform the applicant of their right to challenge.
Challengers should provide additional information for the review. Information regarding dispositions on old arrest records and related information may be helpful to your challenge.
- Download and complete the PICS Challenge form.
- Sign and date the form.
- Within 30 days of the date of denial, mail the completed and signed form to:
PICS Challenge Section
1800 Elmerton Avenue
Harrisburg PA 17110
PSP will respond in writing within five business days of receipt of a valid challenge form.
The Truly Epic FFL Process involves a structured approach to firearm transfers, beginning with the completion of Form 4473. This form requires the buyer to provide specific information, while the transferring Federal Firearms Licensee (Truly Epic FFL) completes other necessary sections. In the event of a denial, applicants may utilize a challenge form to contest the decision, as outlined by the Pennsylvania State Police.
Following submission, the PSP commits to providing a written response within five business days and will render a final decision within 60 days of receiving a valid challenge. Applicants should ensure that all information on the Form 4473 is accurate to avoid delays. If additional documentation is required, the PSP may request it during the challenge process. Successful challenges can lead to the reversal of denials, allowing the transfer to proceed. It is crucial to keep track of all communications with the PSP to facilitate a smooth resolution. Understanding the timeline for responses can help applicants manage their expectations during this process.
To begin your FFL Transfer Process, CLICK HERE!
Truly Epic FFL
701 W. Valley Forge Rd.
King of Prussia, Pa. 19406
(610) 220-2001

